物件情報【売買】Buy and Sale
中古
中区海吉事務所店舗(収益物件)
岡山市中区海吉1853番地6
オーナーチェンジ☆
POINT
- 事務所・店舗としての平屋戸建物件です。
- 岡山牛窓線沿い♪
- 表面利回り5%
- 広々4LDK☆
- 価 格
- 3,120万円
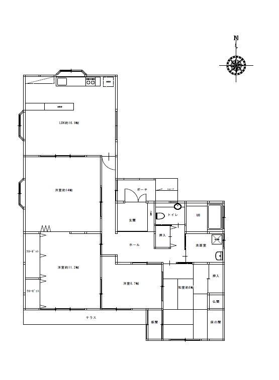
- 間取り
- 4LDK
- 土地面積
- 344.8㎡/104.31坪
- 建物面積
- 135.89㎡/41.1坪
- 学 区
- 富山小学校/冨山中学校
- 交 通
- JR大多羅駅まで自動車で12分
- 所在地
- 岡山市中区海吉1853番地6
- 築年月
- 2004年5月(2007年増築)
- 向き
- 北向き
物件の特徴
- 建物構造:木造
- バス・トイレ別
- 洗面所独立
- 室内洗濯機置き場
- プロパンガス
- 公営水道
- 公共下水
基本情報
| 物件種目 | 収益物件(オーナーチェンジ)事務所店舗 |
|---|---|
| 販売戸数 (総戸数) |
1戸 |
| 間取り/詳細 | 4LDK |
| 建物面積 (坪数) |
135.89㎡/41.1坪 |
| 専有面積 | ー |
| 駐車場/駐輪場 | 敷地内(3台以上可) |
| 向き | 北向き |
| 築年月 | 2004年5月(2007年増築) |
| 構造・工法 | 木造/瓦葺/平屋 |
| 用途地域 | 第一種住居地域 |
| 都市計画 | 市街化区域 |
| 総区画数/ 販売区画数 |
ー |
|---|---|
| 土地面積 (坪数) |
135.89㎡/41.1坪 |
| 土地権利 | 所有権 |
| セットバック | ー |
| 地目/地勢 | 宅地/平坦 |
| 容積率/建ぺい率 | 200%/60% |
| 接道状況 | 北側/公道/幅員約8m/間口5m |
| 私道負担面積 | ー |
| 現況 | 賃貸中(音楽スタジオ) |
|---|---|
| その他・ 法令上の制限 |
■河川法 ■建築基準法第22条区域 ■屋外広告物第3種許可地域 ■洪水浸水想定区域内 |
| 取引態様 | 媒介 |
| 引渡し | 相談 |
| その他特記事項 | ー |
| 建築確認番号 | ー |
| 取引条件の 有効期限 |
ー |
設備条件
| 設備 | ー |
|---|---|
| 設備(その他) | ー |
その他
| 物件番号 | ー |
|---|---|
| 情報更新日 | ー |
| 次回更新予定日 | ー |
| 備考 | ■ローソン岡山海吉店 徒歩約6分 ■ザグザグ海吉店 徒歩約8分 |